• 859 преглеждания

Nakama Park Residence – тристаен апартамент сграда 2 Г18, ет. 3

кв. Малинова долина
€269 080.00

Обща информация

Допълнителна информация

Описание

NAKAMA PARK RESIDENCE – единственият комплекс от затворен тип и премиум клас в динамично развиващия се район на София – Малинова долина, разположен на ул. Крикор Азарян 82.

NAKAMA PARK RESIDENCE е модерен и елегантен проект, вдъхновен от високите стандарти на съвременната архитектура, символизиращ стил, комфорт и устойчивост.

Комплексът включва 3 бутикови сгради с ниска етажност, изградени с най-новите енергийно ефективни технологии. Разполага с охраняем вътрешен парк, свободен от автомобили, с богато озеленяване и спираща дъха гледка към Витоша.

Технически характеристики:
✅ Тухли Wienerberger
✅ Испанска алуминиева дограма Cortizo – 7-камерна, троен стъклопакет, 4 сезона
✅ Луксозни входни врати
✅ Отопление и охлаждане с висок клас термопомпи
✅ Стъклени парапети от закалено стъкло
✅ Испански асансьори Orona – безшумни и електрически
✅ Луксозни общи части с естествен камък и латекс

Местоположение

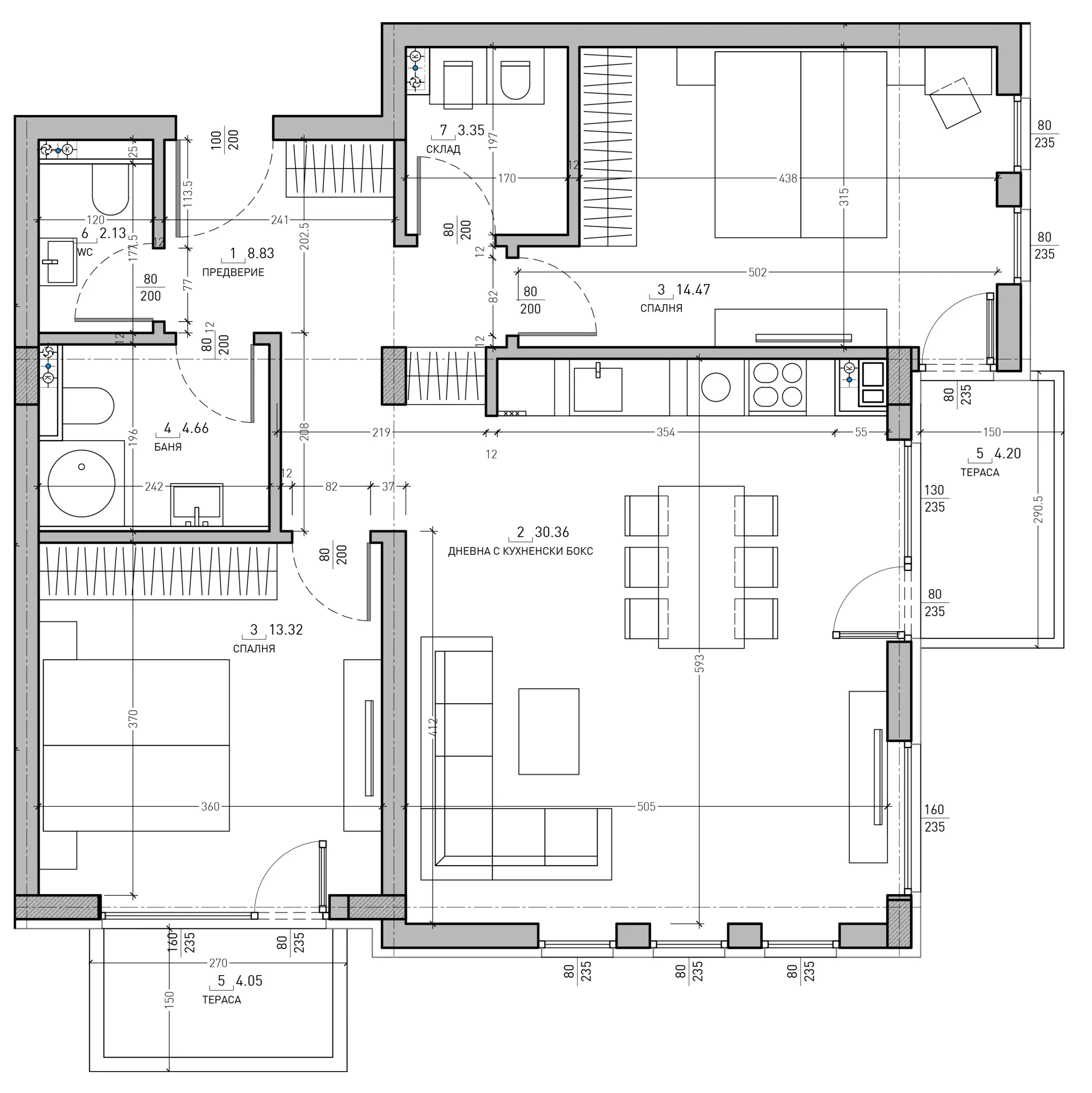
Разпределение

Сграда 2 апартамент Г18

За контакти

Моля, попълнете вашето име.
Моля, въведете вашия телефон.
Моля, попълнете валиден Email.
Моля, въведете вашето съобщение.

Compare

Nakama Park Residence – тристаен апартамент сграда 2 Г18, ет. 3

Албена Димитрова

Директор продажби